Conception et réalisation en auto-construction d’une petite architecture résidentielle en matériaux de réemploi et biosourcés, 2025

Situé à la frontière des quartiers Chantenay et Bellevue, au Nord-Ouest de la commune de Nantes, le site est une parcelle ouvrière de la fin du XIXe siècle avec sa maison de tuffeau en front de rue et son jardin long et étroit. Au départ simple zone résidentielle pour les ouvriers des chantiers navals, brasseries ou conserveries du Bas-Chantenay, la rue des pavillons s’est progressivement transformée au début du XXe siècle pour accueillir de petits commerces locaux. Ainsi le 130 accueillait une épicerie et un tabac presse tandis que le 95-97 fut probablement une cave à vins. Ces activités ont progressivement disparues au cours des années 80-90 pour laisser place à un quartier en plein processus de gentrification résidentielle avec ses divisions et extensions successives.
Le 95 rue des pavillons s’inscrit parfaitement dans ce processus avec une première rénovation thermique dès 2005 du corps principal sur 3 niveaux puis une extension contemporaine en 2015. C’est à l’occasion de cette extension qu’est déposé un permis de construire incluant une pièce annexe en fond de parcelle. Le projet n’est alors pas encore arrêté sur le programme de cette pièce en plus mais une dalle de fondation ainsi que le soubassement sont réalisés durant le gros œuvre du corps principal de l’extension.

C’est en 2024 que je suis contacté pour accompagner la réalisation de cet annexe en auto-construction. Il m’a semblé évident de coupler cette conception à des matériaux de réemplois présents sur site mais aussi plus largement à l’échelle du bassin nantais, à la fois pour compenser le coût en main d’œuvre mais aussi pour inscrire ce projet dans un processus plus large de neutralisation de la construction neuve.
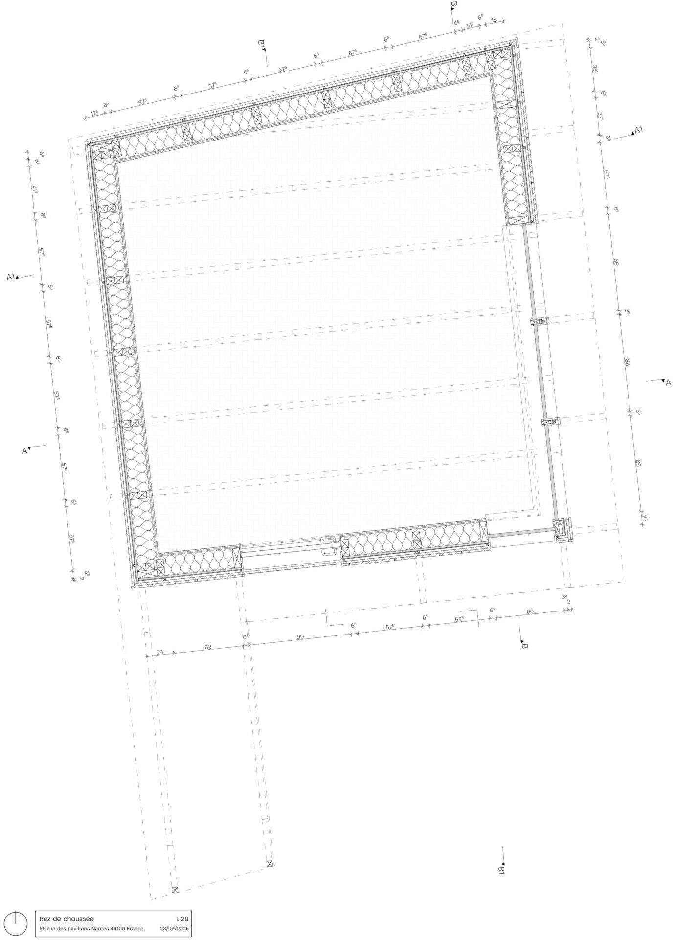
L’architecture de la pièce en plus s’appuie sur plusieurs contraintes. Une première est réglementaire avec un permis de construire déposé pour une surface maximale de 25 m² et de 3,50 m en faîtage monopente. La seconde est l’existant avec ici une dalle et son linéaire de soubassements en béton agglomérés situés en fond de parcelle, mais aussi les nombreux arbres et arbustes à conserver proches de la structure. La troisième est, comme dit précédemment, de valoriser au maximum les matériaux biosourcés et de réemplois sourcés localement sur la région nantaise.


La structure porteuse est une ossature bois en douglas et chêne simple contreventée en pied et tête de paroi par une poutre de frêne de réemploi. Les vitrages de réemploi fournis par Bâtibrad (Carquefou) sont mis en œuvre tels quel, sans cadre. Pour palier à l’absence de dormant et d’ouvrant, l’ensemble est monté dans une sous-structure semi-dépendante de la structure ossature bois. Cette technique permet de diminuer la transmission des forces issues du risque sismique mais aussi du travail du bois aux vitrages, limitant ainsi les contraintes mécaniques et donc les fêlures.



La structure est contreventée et fermée en extérieur par des panneaux prédécoupés médiums (mdf) issus de chutes non-exploitées. Les façades extérieures sont bardées de sections verticales de bois brûlé, brossé et traité à l’huile de lin sur place. Ce traitement du bois permet de rendre ce bois résistant au feu, aux insectes et aux champignons tout en lui donnant une couleur plus sombre parfaitement adaptée pour ce sous-bois de fond de jardin.
L’isolation est assurée par une couche de 18 cm de fibre de bois fermée par des panneaux OSB en finition intérieure. La ventilation mécanique de la pièce est assurée par une simple VMC sur la façade Est et la ventilation manuelle par un ventail oscillo-battant au-dessus de la porte d’entrée.

La toiture bac acier est soutenue en débord par de courtes poutres de bois biseautées permettant d’alléger visuellement l’ensemble et de libérer un espace extérieur abrité en fond de parcelle.
